SECad Solutions | SMDG Software
SMDG Software

SMDG Software

ToNest is an innovative solution designed to address a common challenge faced in Tanks, Pressure vessels and steel structure projects�efficiently managing and utilizing exported data for material nesting and optimization. designs and detailing software solutions generate Excel sheets containing detailed information about Hot Rolled Sections and Plates, including type, dimensions, material, and quantity. However, transforming this data into actionable nesting plans often proves to be a time-consuming and error-prone process.

Structural Component Modeling

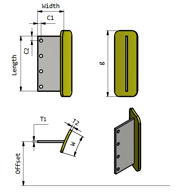
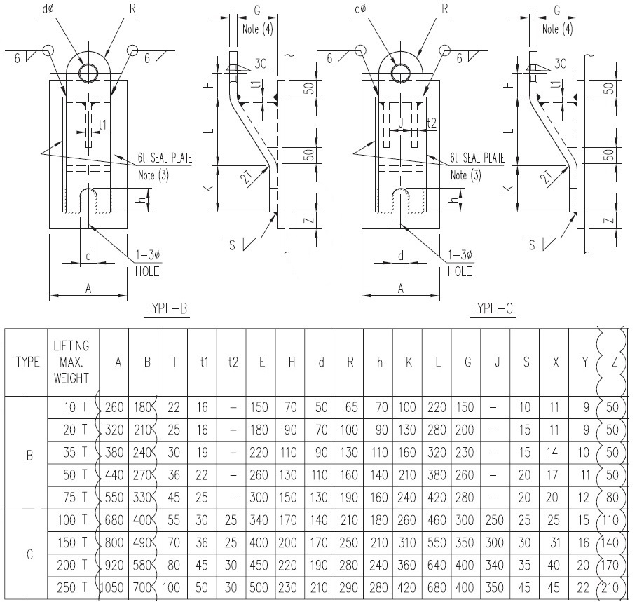
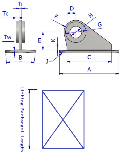
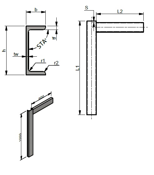
Supports L, T, U, and other common support structures used in mechanical and piping applications. Easily generates frames, beams, columns, and brackets for various industrial needs.

SECad
SECad
SECad
SECad
SECad
SECad
SECad
SECad
SECad
SECad
SECad
SECad
SECad
SECad
SECad
SECad
SECad
SECad
SECad
SECad
SECad
SECad
SECad
SECad
SECad
SECad
SECad
SECad
SECad
SECad
SECad
SECad
SECad

Terminology Clarification

Oil & Gas
Oil & Gas

Pipe supports, skids, mechanical equipment detailing